华严寺,位于河南省临颍县三家店镇乌江沟南侧卧龙岗尾,北宋时建寺。
中文名:华严寺
所在地:河南省临颍县三家店镇
建造时间:北宋
八大辽构 | 大同上下华严寺历史变迁

想必去过华严寺的人们,
都见过镌刻在大雄宝殿月台下
这段禅师语录。
让我们回到八十年前的华严寺,

这是一组来源于“华北交通株式会社”拍摄的一组作品,拍摄时间为昭和十四年四月,也就是公元1939年的4月,距今整整八十年之久。






首先,这两通砖刻位于上华严寺大雄宝殿月台石级南北两侧,刻着著名唐代禅师永嘉和黄蘖的语录,均为126字,是清代书法家崔卿云所书。


北侧系来源于《唐•黄檗禅师语录》:
日升之时明,虚空未曾明;日没之时暗,虚空未曾暗。明暗之境自相凌夺,虚空之性廓然自如;佛及众生心亦如是。若观佛作清净光明相,观众生作垢浊暗昧相,历河沙劫终不得菩提。凡人皆逐境生心,若欲无境,当忘有心,心忘则境空,境空则妄灭。见善来相迎,亦无喜心,见恶相种种,亦无怖念。但自忘心同于法界,方得自在。

译文:太阳升起有光明,但虚空并不是因此而明亮;太阳落下成黑暗,但虚空也并不是因此而黑暗。光明与黑暗这两种境相互相取代、不得并存,而虚空廓大自如的本性却是常在大光明中,无所谓明暗,诸佛、众生、真心也是这样。
若是认为佛是清净光明之相,众生是垢浊暗昧之相,这个人经历恒河沙这样多的劫数也不会觉悟。人们都是心随境走、逐境生心,若想去掉境相,应当忘却分别执著这个妄心,心忘境相自空,境空妄心自灭。见善妙美好的境相不生欢喜心,见种种凶恶境相也不生恐怖念,忘却身心,量等法界,方能得大自在。

南侧系来源于《唐•永嘉禅师语录》:
凡人多于事碍理,境碍心,常令逃境以安心,遗事以存理,不知乃是心碍境,理碍事。但令心空境自空,理寂事自寂,勿倒用心也。此法即心,心外无法;此心即法,法外无心。心自无心,亦无无心者,若将心无心,心却反成有。为有贪嗔痴,故立戒定慧;本无烦恼,焉用菩提!故祖德云:佛说一切法,为除一切心;若无一切心,何用一切法。

译文:大多数修行人都是被事阻碍理、让境制约心,常常想逃离境相以安稳自心,避开事物以保守真理,却不知本来是心制约境、理阻碍事,但能让心空,则境相自空,理寂则事物自寂,千万不可颠倒认识。
法就是心,心外无法;心就是法,法外无心。心的本性就是无心,也没有无心无妄的管理者。若是非要使此心无心,反而成为有心。因为有贪嗔痴,所以要修戒定慧;若已经无烦恼,又何须觉悟!因此祖师大德说:佛说一切修行法门,为的是除灭一切妄心,若是已经没有一切妄心,又何用这一切修行法门。

▲华严寺著名的露齿菩萨
By|说大同
审核|方天戟
中式营造2016年记录上下华严寺
下图华严寺改造前规划平面图

华严寺位于大同古城内西南隅,始建于辽重熙七年(公元1038年),依据佛教经典《华严经》而命名。兼具辽国皇室宗庙性质,地位显赫。后毁于战争,金天眷三年(1140年)重建。

上世纪初上华严寺

上华严寺大殿区域改造前

以下中式营造记录华严寺

现今天的华严寺分上下寺,华严寺坐西向东,山门、普光明殿、大雄宝殿、薄伽教藏殿、华严宝塔等30余座单体建筑分别排列在南北两条主轴线上,布局严谨。

目前上华严寺大殿

上华严寺高台区域老照片

上寺大殿


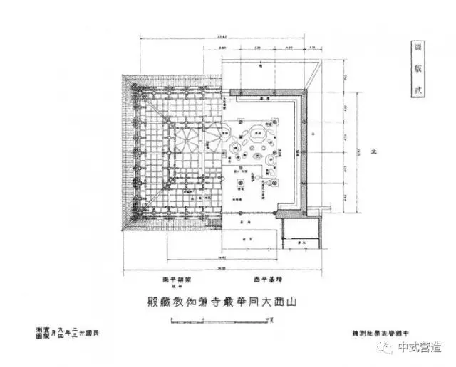
上寺大殿平面图


上寺大殿

上寺大殿内部


大殿内部





华严寺占地面积达66000平方米,是中国现存年代较早、保存较完整的一座辽金寺庙建筑群,1961年被国务院公布为第一批全国重点文物保护单位.。

上图下寺大殿左侧位置就是复建的海会殿

华严寺始建于辽重熙七年(1038年),依据佛教经典《华严经》取“慈悲之华,必结庄严之果”的大乘教义而命名。清宁八年(1062年)建华严寺,奉安诸帝石像、铜像。辽末因为战争,寺院局部建筑被毁,金天眷三年(1140年)重修。辽、金两代,平城(今大同)都是当时的别都,该寺受到皇室的重视。

上图位置经幢往东处以前有天王殿

老照片天王殿(后面是大殿),前为放生池

对照下华严寺现场与老照片发现建筑高台立面位置两侧部分老建筑消失情况,今天我们看到的下华严寺与民国时候有些变化。

下华严寺位于上寺的东南侧,相距不远。以薄伽教藏殿为中心,有辽代塑像、石经幢、楼阁式藏经柜和天宫楼阁等。

下寺大殿为薄伽教藏殿,意为佛教的经藏殿。面阔五间,进深四间,单檐九脊顶,正脊两端矗立着高达3米的琉璃鸱吻。屋顶坡度平缓,出檐深远,檐柱显著升起 。

薄伽教藏殿内右侧椽底题有“维重熙七年(1038年)岁次戊寅九月甲午朔十五日戊申午时建”字样,表明这是一座历经辽末保大之乱后幸存的辽代建筑。


殿内斗八藻井等亦是辽代旧物,内槽彩画中所绘网目纹、三角柿蒂等辽代通行的纹样尚依稀可辨。佛坛上布列辽代彩塑29尊,分3组:北部一组以过去佛燃灯佛为本尊,胁侍二弟子、四菩萨;中部一组以现在佛释迦牟尼为本尊,胁侍二弟子、四菩萨;南部一组以未来佛弥勒为本尊,无弟子,有胁侍六菩萨。三尊佛像前端坐四大菩萨,由北而南依次为大悲观音、大智文殊、大行普贤、大愿地藏。此外,过去、未来二佛像前各有两尊供养童子像,佛坛四角各有一尊护法天王像。殿内诸多塑像呈“品”字形排列,在组合布局上突破了佛坛面积的限制,并利用造像的不同仪态,使群像结构紧凑、密集而不重叠。


整个色调以墨绿、红、金为主。在佛坛上的诸菩萨像中,以一尊面带微笑的“合掌露齿”胁侍菩萨像最为生动,堪称“神品”。塑像高约两米,赤足站立在莲花台上,体态丰盈、上身薄袒、衣饰贴体、肘悬飘带、发束高冠、身姿略侧、颈项微斜、双目半睁、朱唇小开、两手合十、举至胸前、露齿微笑,被赋予“东方维纳斯”之雅号。




八大辽构 | 大同下华严寺薄伽教藏殿小木作天宫

下华严寺薄伽教藏殿 辽重熙七年

下华严寺薄伽教藏殿

下华严寺辽代建筑海会殿以消失

海会殿历史照片





以上老照片为海会殿历史资料图

日伪时期下寺薄伽教藏殿旧影

改造后成为景区现状态规划图

以上中式营造2016年记录照片
欢迎转发朋友圈,
其他平台转载需后台留言授权。
7月14日起大同华严寺景区周一至周五工作日对全国游客免门票
近日,省政府办公厅印发了《关于加快促进服务业恢复稳定增长若干措施的通知》,要求“2020年下半年全省国有A级以上景区周一至周五工作日期间对全国游客免首道门票,门票减免收入由省级财政补贴20%、市级财政结合当地实际补贴不低于20%。鼓励省内民营A级以上景区参照执行,参与减免首道门票的景区与国有企业享受同等补贴政策。疫情防控期间,旅游景区要建立完善预约制度。

大同华严寺景区现按照上级部门指示接待游客量继续按照不超过最大承载量的30%执行,为贯彻落实好此项工作,现作出如下安排:
7月14日起大同市华严寺景区周一至周五工作日期间对全国游客免门票。 门票预约:详情请看“新大同”公号 预约参观时间上午8:30-10:30预约门票1000张
上午10:30-12:30预约门票1000张
下午12:30-14:30预约门票1000张
下午14:30-16:30预约门票1000张
下午16:30-17:30预约门票500张
坚持将限量作为旅游景区开放管理的前提,在落实防控措施和预约、限流的前提下实施开放,倡导“无预约不旅游”的消费理念,加强关键节点管理,做好游客疏导和管控,避免出现局部拥堵现象,让大家旅游出行中更安全更放心。
2020-7-13
文章来源:大同华严寺景区
最热线路:华严寺—华严广场—大同古城
《中国大同旅游发展指数(2020年上半年运行报告)》发布,上半年我市旅游综合发展指数均值较2019年同期下降29.69%,但指数自3月以来回升明显,连续三个月实现增长。目前,我市旅游业逐步复苏,发展态势趋于稳定。
由中国经济信息社联合大同市政府共同发布的中国大同旅游发展指数是国内首支城市级古都旅游大数据指数,于2017年上线,日度计算、季度发布。该指数集旅游资源数据化、品牌传播数字化、产业发展智慧化为一体,对加速推进大同与京津冀地区的深度融合具有重要意义与现实作用。
我市作为国务院首批公布的历史文化名城之一,文化底蕴厚重,吸引了众多青睐历史文化类景区的游客前来。上半年, “华严寺——华严广场——大同古城”成为最热线路。第一季度最热线路为“大同古城——大同城墙景区——御河生态园林”,体现出疫情期间游客对活动空间大、场地开阔的室外旅游或生态旅游场所的偏好。
根据指数显示,今年上半年,我市游客流量热度增势良好。受新冠肺炎疫情影响,该指数较去年同期减少21.04%,但3-5月指数平稳增长,至6月趋于平稳。游客规模较去年有所缩减,但来大同旅游停留5天及以上的游客占比呈上升趋势。上半年,省外游客主要来自张家口、北京、乌兰察布等周边城市,省内游客主要来自朔州、太原,四成以上游客来自京津冀地区。
上半年,我市的旅游市场消费活力回暖,国内旅游收入累计91.45亿元。从消费数据来看,省外城市中,北京游客的旅游消费贡献度最高,杭州、兰州、温州、重庆游客的消费能力最强。省内城市中,太原游客的旅游消费贡献度最高,晋城、吕梁、太原、晋中、朔州游客的消费能力最强。报告认为,18-30岁的年轻游客是来大同旅游消费的主力军。夜间消费金额占比在30%上下浮动,且呈稳定上升态势。
同时,我市旅游关注潜力热度也在显著回升,主要景区评论热度走势整体渐趋平稳。3月,在线旅游评论热度达到小高峰,评论量环比增长104.92%。5月,云冈石窟景区的在线旅游评论热度达上半年小高峰。云冈石窟、悬空寺、华严寺等历史文化古迹是主要旅游吸引物,历史古迹类景区在景观方面的游客满意度较高。“大同黄花”的品牌效应亦展现出独特吸引力。