美国阿斯彭滑雪场开放
新华社照片,外代,2020年11月26日
当日,美国滑雪胜地阿斯彭的滑雪场开始恢复营业。
新华社/美联

11月25日,在美国科罗拉多州阿斯彭,两名儿童坐在滑雪场的椅子上等待。
11月25日,在美国科罗拉多州阿斯彭,游客在滑雪场滑雪。

11月25日,在美国科罗拉多州阿斯彭,人们在滑雪场乘坐电缆车。
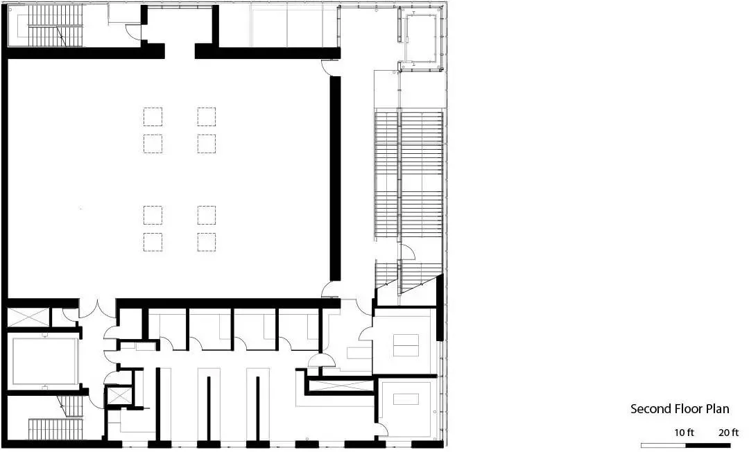
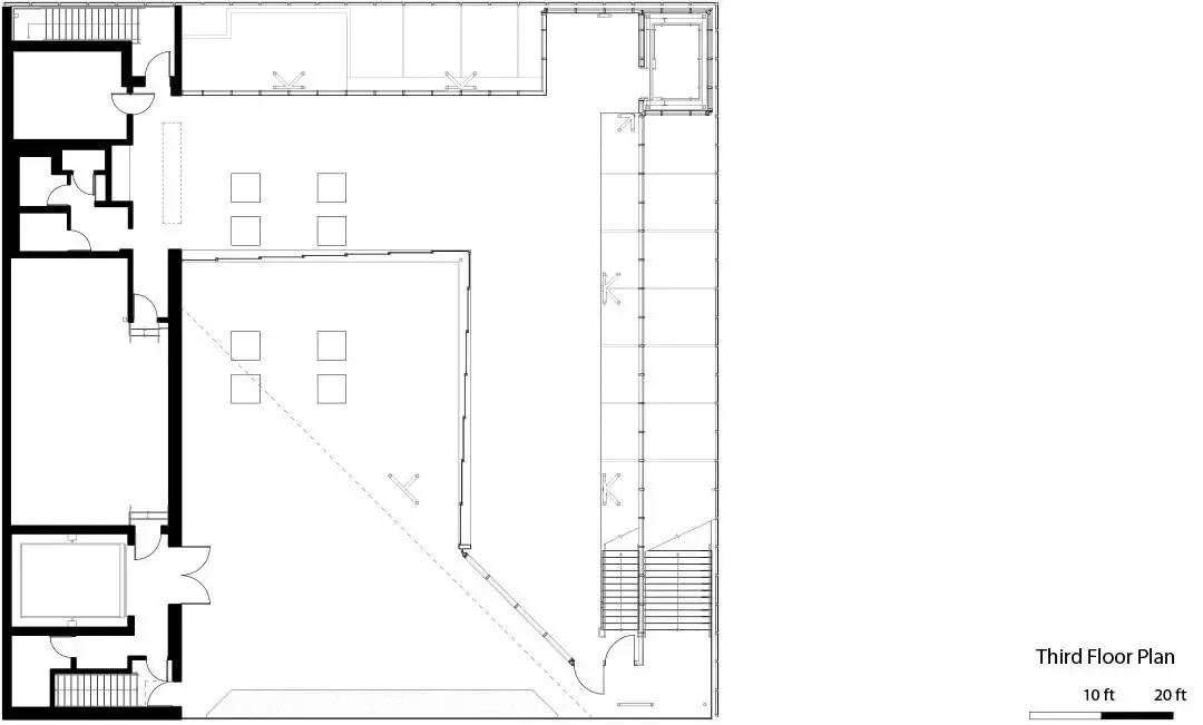
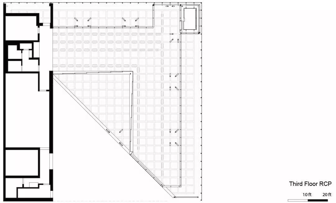
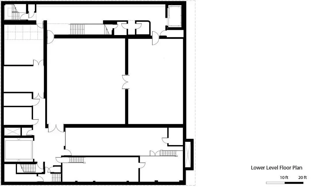
村市集|阿斯彭小镇的美术博物馆 阿斯彭
普利兹克奖的日本建筑师坂茂完成了在美国的第一个博物馆–阿斯彭美术博物馆。

阿斯彭美术博物馆位于美国科罗拉多州阿斯彭小镇的中心繁华地,面积3000平方米,建设资金完全由私人捐助。

当地人口在6700人左右,是一个风景如画的地方,因此博物馆基于透明和开放的理念,让建筑内外的人与风景产生交互。

博物馆的设计主要基于五个元素:
1 交通系统:被外表皮包裹,被内表皮切分而一般处于室外一半处于室内的大楼梯。一个位于建筑东北角由透明玻璃打造的景观电梯

2 公共平台:人们到屋顶可以欣赏阿斯彭美景的屋顶公共平台。
3 屋顶木结构:屋顶结构采用了创新的三角形屋顶结构,制造出人们能够欣赏到的具有深度和层次的美丽天花板结构。

4 木材外表皮:编制的木材外立面笼罩了建筑的两个主要立面,成为建筑的标志,其通透的构造让光与风任意游走。特别是光,在博物馆的楼梯,走廊和空间中雕琢出动人的光影。

5 天窗:屋顶层的天窗为下层展览空间带来自然光线。
建筑的主入口在北侧,游客也能通过东北角的景观电梯或者开放大楼梯到自己想去的楼层。

开放楼梯被建筑的内表皮一分为二,一部分处于室外(10英尺宽度),另一部分处于室内(6英尺宽度)。建筑编织外墙由复合材料打造的特殊合金纸,外面包裹双层木皮而造就。其通透开放,与内表皮之间的10英尺空隙让室内外的空间自然混合。

屋顶设有咖啡厅和一个三角形形状的公共观景平台,游客能在这一层心无旁悸的放松,以及欣赏周围美丽的Ajax山景。

除了展览空间,建筑还设有教育空间,出售具有收藏价值艺术品的商店和书店,驻场艺术家公寓以及储藏室和多功能用房。

从2010年开始建设的这个博物馆终于在2014年夏天建成。之后它给这个人口不到7000人的小镇带来了极大的活力,远道而来的游客和学生团体陡然增加。




















更多内容请关注公众号:村市集
引领
村市集
古村、市井、乡愁传承着乡村的生活艺术,荣归故里、衣锦还乡、解甲归田、落叶归根是发达社会中国中产阶级的精神归宿。
本文源自网络,谢谢阅读,如需转载,请注明创意乡村。