文庙之后,常熟又一文化地标—言子旧宅明年与市民见面!
言子,春秋孔门十哲之一。他道启东南,文开吴会,对常熟文化产生了深远的影响。你知道吗?如今常熟城内还留有与言子有关的很多遗迹,言子旧宅及“墨井”就是其中之一。
跟随小编一起去探访吧~~






言子旧宅位于老城区东言子巷17号,是市级文物保护单位。小编走进宅子看到,施工人员正在拆除里面的一些违章搭建,清理现场遗留的一些石构件。

由于年久失修及人为因素影响,言子旧宅已经出现了不同程度的残损,但院中的一口“墨井”和几块清雍正、乾隆年间的碑刻还保存完整。


01
市文广新局文博科科长 陈俊
墨井也称“圣井”,当时言子他使用过的井,所以我们说它是一口2500年历史的井,是常熟现存最早的一口井,具有很重要的史料价值。


据史料记载,言子青少年时期和晚年都居住在这里,他的后人也世世代代居住在言子巷一带。后来言子旧宅几经变迁,现存的建筑是言氏后裔在清代时奏请朝廷重新修建的。

当时它是有三条轴线,东中西三条轴线,现存只剩下主体建筑东轴线,就是墨井这条轴线,还有三幢清代建筑保存的比较完整。

为恢复宅子原貌,我市组织文史、建筑专家多次论证,最终决定按照清代《言子文学录》里的言子旧宅图进行恢复,整个工程涉及东言子巷13、15、17号以及班巷4号、6号民居,总建筑面积约1000平方米。


首先对东轴线现有的古建筑进行修缮,按照不改变文物原状的原则,对墨井周边环境进行整治、进行疏浚,恢复墨井的景观。在墨井边上还准备要复建一个墨井亭。

造一个青年言子像,在墨井亭里进行抚琴、弹琴。

另外,在西轴线上将复建言氏后裔曾存放皇帝御赐匾额、书法、古籍的宝翰楼,同时新建一条碑廊。
小编还了解到,除墨井和碑刻外,文博人员之前还在言子旧宅内发现了石香炉、石鼓墩、石柱础等20多个青石构件,目前由市博物馆保存。在工程启动后的拆违清理阶段,考古工作人员将对现场进行日常巡查。
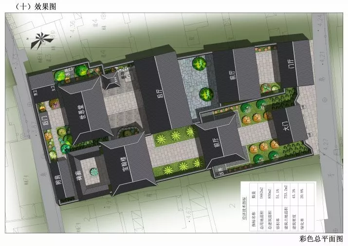
先来看几张效果图吧!






整个工程预计将在2019年底完工,目前言子旧宅的布展策划工作也在同步进行。修缮开放后的言子旧宅将作为介绍言子生平、宣传言子功绩、弘扬儒学文化的场所。

特别感谢:全媒体新闻中心 潘一琪、孙奥
编辑:宇红、宁昱
1
2
今天,言子旧宅优雅归来!常熟再添一文化坐标,大量美图曝光! 言子
好消息!
历时2年,言子旧宅维修及周边环境整治工程
9月28日,修复后的言子旧宅正式开放!
赶紧来一睹为快!

常熟作为吴文化的发祥地之一,5000多年历史积淀形成的文化遗产,源远流长,熠熠生辉。春秋时期,孔门十哲之一的言子,开启了常熟灿烂文化的首页,言子旧宅、言子墨井、言子墓等言子文化遗迹至今犹存。丰富的言子文化遗存是常熟得天独厚的文化优势和宝贵的精神财富,也是常熟这座历史文化名城的一张“金名片”。


言子旧宅修复开放仪式

▲市政府副市长赵红主持开放仪式

▲市文体广电和旅游局局长顾玉芬汇报言子旧宅修复开放筹建概况

▲市委副书记、政协主席韩卫兵致辞


▲孔子研究院学术交流部副部长路则权致辞

▲全国言氏后裔代表发表感言

▲市委副书记、政协主席韩卫兵与市委常委、宣传部部长孙健为“言子旧宅”揭牌

▲市委副书记、政协主席韩卫兵与孔子研究院学术交流部副部长路则权为“孔子研究院常熟研究基地”揭牌。





▲领导及嘉宾参观言子旧宅并观看传统文化展演
恢复开放后的言子旧宅
将会给我们带来哪些惊喜?
一起来看看吧

言子旧宅
常熟钟灵毓秀,英杰辈出。言子旧宅是常熟现存最古老的名人旧宅,为唐陆广徽《吴地记》、北宋朱长文《吴郡图经续记》、南宋范成大《吴郡志》等众多史料记载,具体地址始终未有变更。尤其在清乾隆晚期,言氏后人大规模修葺扩拓旧宅并建造墨井亭,基本格局延续至今。内有言子墨井、清乾隆四十七年(1782年)御祭碑、乾隆及光绪间镌一松山房四止图、言子墓图、言子像等碑刻文物共6块。据建筑风格,除墨井及乾隆碑刻外,均为清晚期在原乾隆大修基础上重建。建国后1984年修缮。2019年由常熟市人民政府再次修缮并向市民开放。
现言子旧宅作东西二轴,用以展示、传播言子文化。


东轴依次为门厅,系园堂一一言子生平事迹,学道堂一言子思想展示,世恩堂一言氏家族沿革;



西轴依次为门厅ー一言子遗存介绍,弦歌馆一一儒学礼乐传承,宝翰楼一一言氏相关文物。


两轴之间建设碑廊,展示言子文化相关碑文。


修复开放后的言子旧宅作为展示言子思想品质、精神丰采、儒学文化的重要场所,是人们了解常熟的人文历史、寻找家乡情怀和文化根脉的重要场所。言子旧宅的修复及开放是彰显常熟人文历史和地域文化的重要契机,对打造常熟品牌文化具有深远影响。


是不是很惊艳呐
马上国庆小长假要来了
赶紧去打卡一波!
地址:常熟市虞山街道东言子巷17号


常熟,
是黄公望笔下的泼墨山水,
是严天池琴下的袅袅余音,
是张旭狂草的潇洒不羁,
是钱谦益诗里行间的清词妙句。
常来常熟,发现不一样的惊喜~
文章源自:常来常熟